MAMA CHAI’S.

Commercial Property

Fullerton, CA • 2025 • Seongyeon Song

Jump to: PlanningFinal LookAbout the Project

Planning

3D Rendering - MAMA CHAI’S

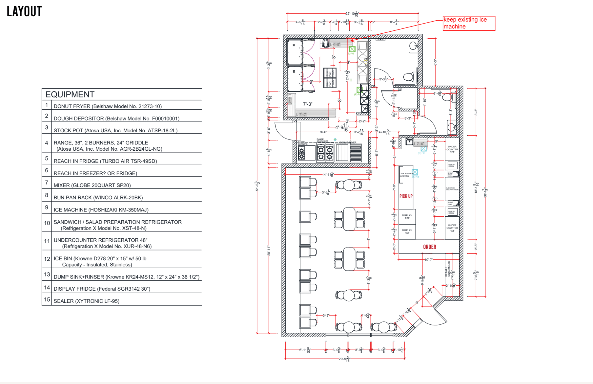
Layout Design - MAMA CHAI’S

Layout Design - Concerto

design & completion

Final Look

About the project

  • Creative Director: Jacqueline Eum

    Interior Designer: Seongyeon Song

    Planning & Branding : Juniper Yang

  • Year Completed: 2025

    Location: Fullerton, CA

    https://www.instagram.com/mamachais/

    Mama Chai’s introduced a new brand identity with the opening of its second Fullerton location, e volving from a regionally themed look into a universal brand that can grow across all markets.

    Rooted in the Korean family name Chai (채), the new visual identity draws inspiration from the Korean consonant ㅊ, reimagined as a floral form.

    The Branding & Design features soft, connected curves that express connection across generations, communities, and cultures.

  • Branding

    Interior Design

Similar Projects