Old Ferry donut.

Commercial Property

Los Angeles, CA
Buena Park, CA
Cerritos, CA
San Gabriel, CA
Torrance, CA

2023 ~ 2025 • Jacqueline Eum + Jiyo Kwon

Jump to: PlanningFinal LookAbout the Project

Planning

3D Rendering - Old Ferry Donut

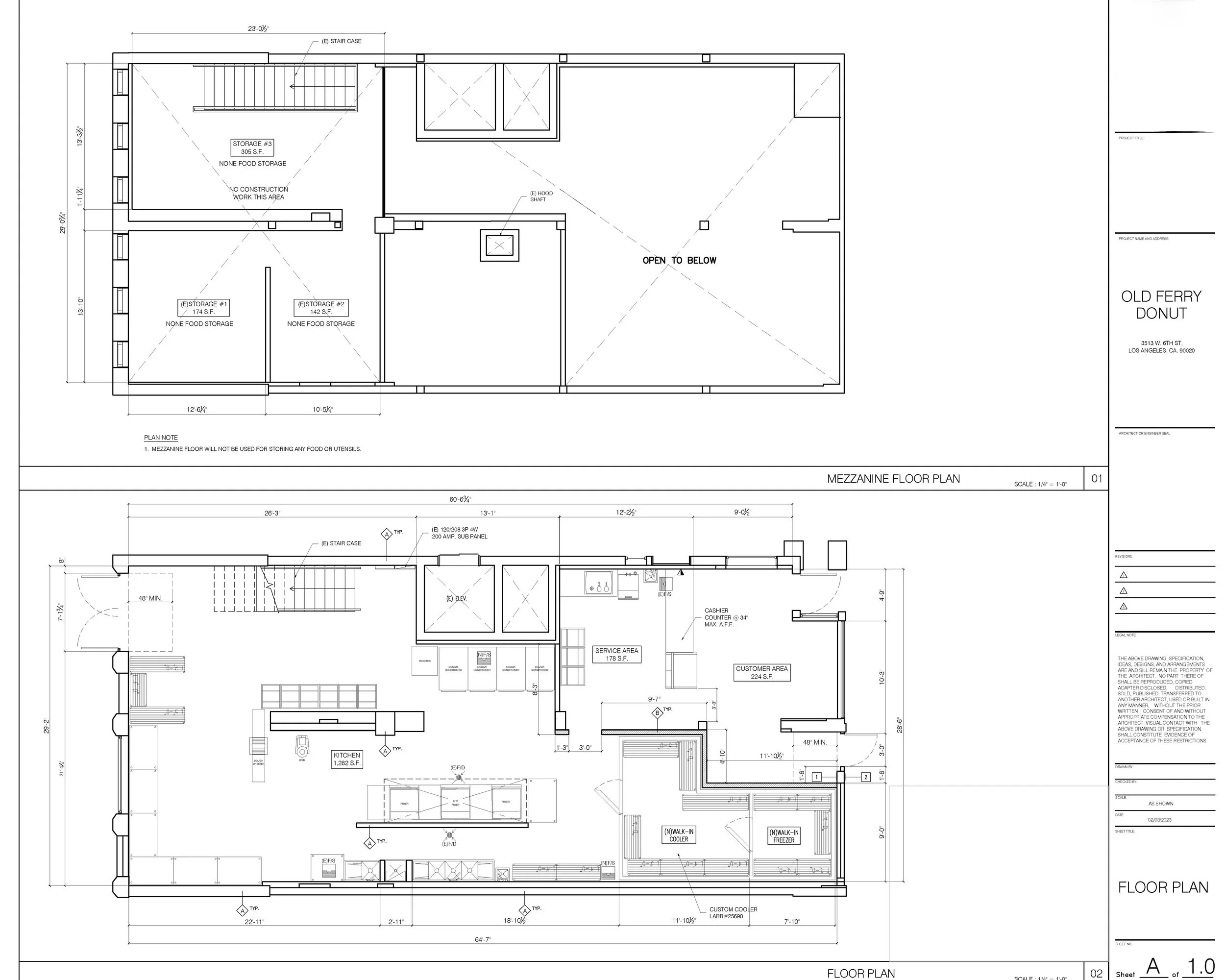
Layout Design - Old Ferry Donut

Layout Design - Old Ferry Donut

LOS ANGELES - K town

CERRITOS

buena park

About the project

  • Creative Director: Jacqueline Eum

    Designer: Jiyo Kwon

  • Year Completed: 2023

    Location: Los Angeles, CA + 5 more

    https://www.oldferrydonutus.com/

    One of 5 locations designed by JDEA Studio, the Old Ferry Donut in Koreatown stands out as a fun yet remarkable feat of interior design. Residing on 6th street, adjacent to the longstanding Chapman Plaza, OFD K-town rocks a retro 70s style interior that pairs surprisingly well within the historical context of the building. Fun OFD-patterned, brown wallpaper and dark wooden panels adorn the shop, making way for the bold blue and orange color palette of the establishment to fill the space. A custom-made shelving unit and bright counter-space greet you as you enter the store, inviting you in for a sweet time filled with donuts and bears. OFD makes it’s stamp on K-town through it’s energetic and unique interior that no other donut shop can compare to.

    “…what I liked about it [OFD] is that we tried to keep the brand and interior design elements as much as we could to fit local circumstances here.”

    | Jiyo Kwon, Interior Designer


  • Interior Design

    Project Management

Similar Projects