Woodburn.
Residential Property
Los Angeles, CA • On-going • Dante Hernandez
Jump to: Planning • Final Look • About the Project
Planning
3D Rendering - Woodburn
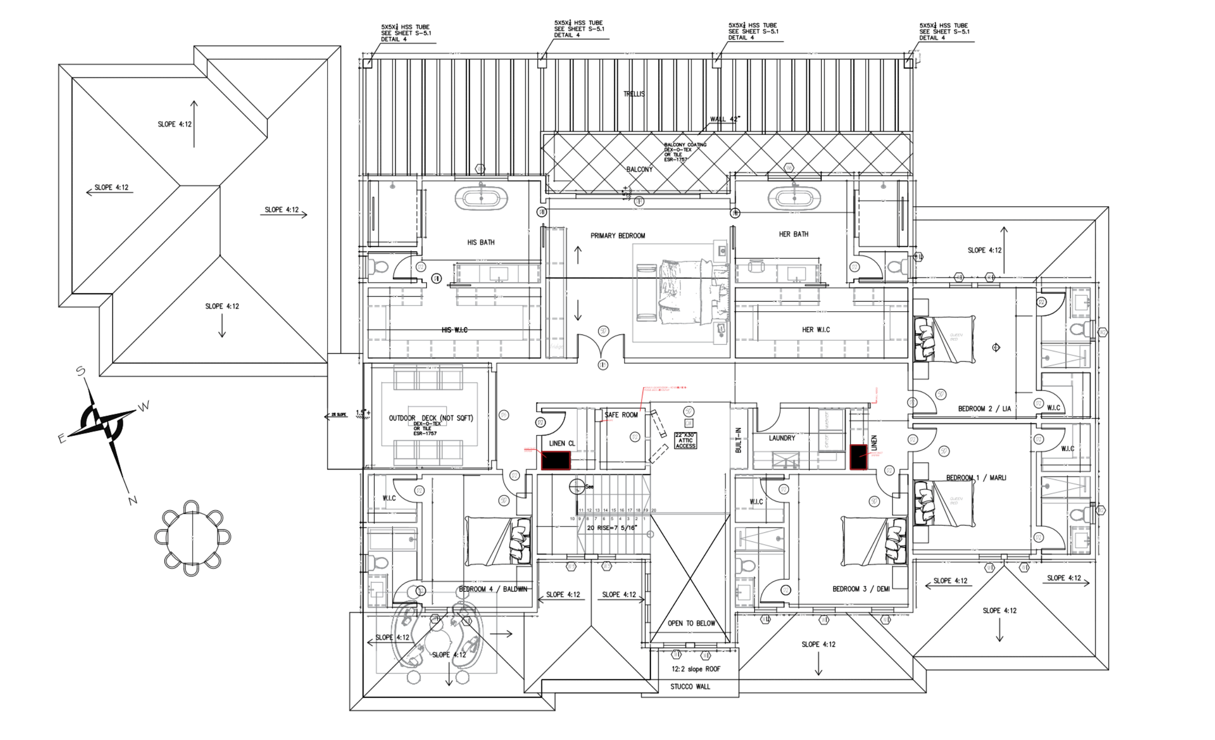
LAYOUT DESIGN - Woodburn
Layout Design - Woodburn Dr.
DESIGN & COMPLETION
Final Look
About the project
-
Creative Director: Dante Hernandez
Designer: Abdullah Kelani + Angelica Velasco
Architect : Dafna Lahav Design
Builders : Lightning Construction
Finishes : Decorum
-
Woodburn, Los Angeles, CA
A beautiful home with a bright future, today we showcase our 3D renders for 161 Woodburn. Still in construction, Woodburn is a home following inspiration of a modern chateau. This is a project for a very special family, and the care and effort put into it reflects that sentiment. Compliments to @lightning_construction_design for their expertise and rapid development as we are on track to finish the project on time in late 2025 to early 2026, and potentially even finish ahead of our schedule in early 2025.
-
Interior Design

