luxfit medspa.
Commercial Property
Los Angeles, CA • 2025 • Seongyeon Song
Jump to: Planning • Final Look • About the Project
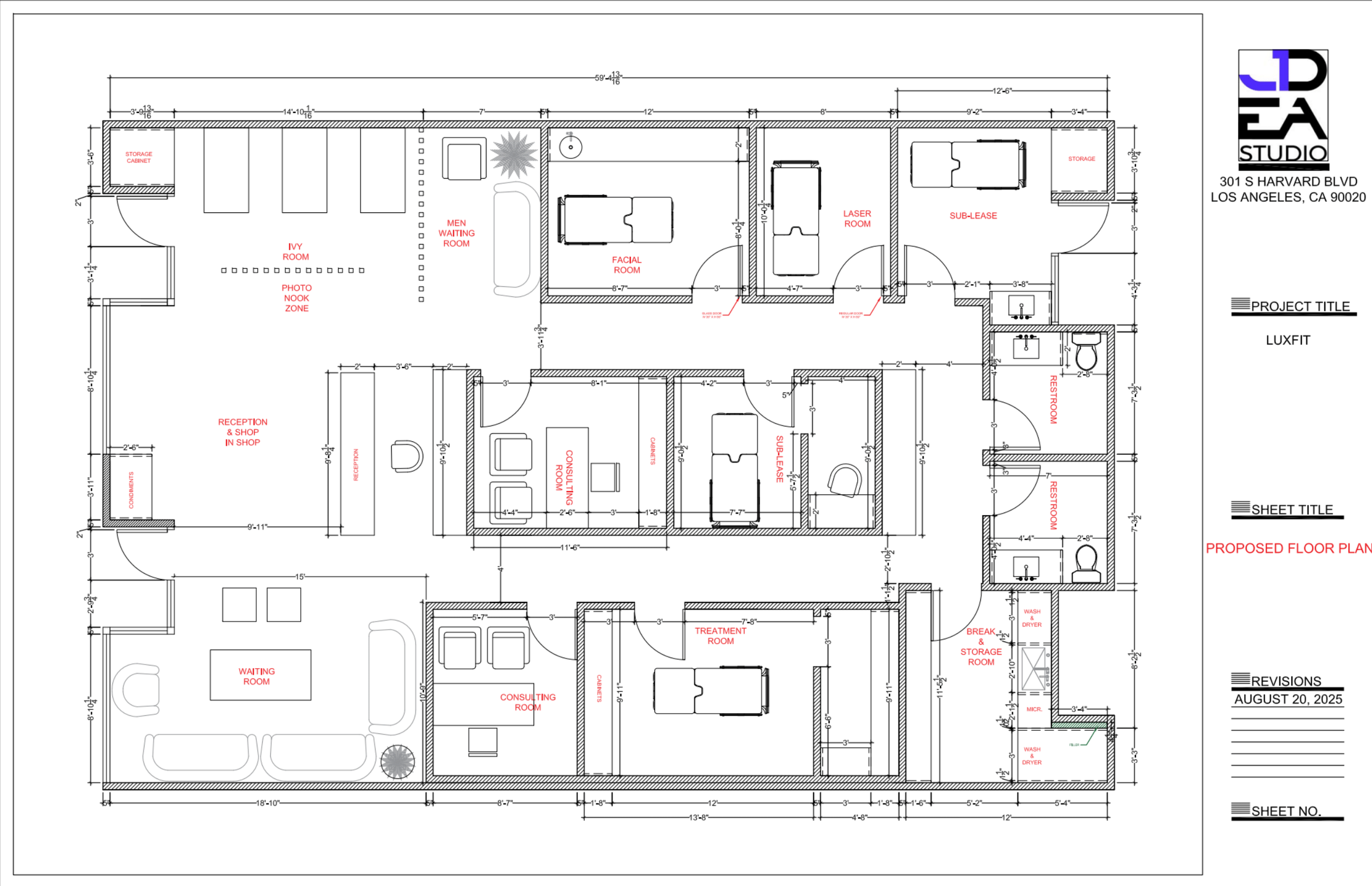
Planning
3D Rendering - Luxfit
Overview - Luxfit
Overview - KINS Hotel
design
About the project
-
Creative Director: Jacqueline Eum
Designer: Seongyeon Song
-
Year Completed: 2026
Location: La Habra, CA
-
Interior Design
3D Rendering
Project Management
Construction Partnership with 301projects
Sourcing Partnership with Decorum

